1 OF 12
Wild Rose Walkout Plan
Townhome
2,240 ft ²
3-4beds
3
baths
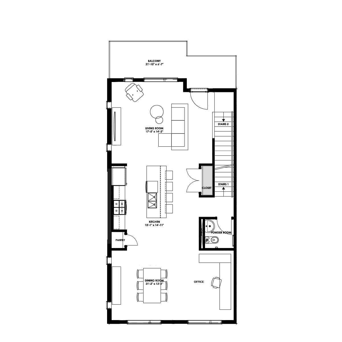
The Wild Rose Walkout offers 2,133 sq. ft. of thoughtfully designed living space across three levels, ideal for growing households or those who value flexibility. This three-bedroom, three-bathroom townhome is part of Rhythm at Taza Park - a vibrant, master-planned community just 10 minutes from downtown Calgary.
The entry level features a private garage and welcoming foyer, with the option to include a fully enclosed office - perfect for remote work or a quiet retreat. On the main floor, you’ll find an open-concept kitchen, dining, and living area with optional upgrades like a gourmet kitchen layout, flex room desk, or electric fireplace to make the space truly yours.
Upstairs, three spacious bedrooms offer comfort and privacy, with customizable options including a two-bedroom layout or a bedroom with an additional ensuite. Capping it all off, a private rooftop patio provides a standout feature—ideal for entertaining, relaxing, or simply enjoying the surrounding views and fresh air.
The entry level features a private garage and welcoming foyer, with the option to include a fully enclosed office - perfect for remote work or a quiet retreat. On the main floor, you’ll find an open-concept kitchen, dining, and living area with optional upgrades like a gourmet kitchen layout, flex room desk, or electric fireplace to make the space truly yours.
Upstairs, three spacious bedrooms offer comfort and privacy, with customizable options including a two-bedroom layout or a bedroom with an additional ensuite. Capping it all off, a private rooftop patio provides a standout feature—ideal for entertaining, relaxing, or simply enjoying the surrounding views and fresh air.
The Wild Rose Walkout offers 2,133 sq. ft. of thoughtfully designed living space across three levels, ideal for growing households or those who value flexibility. This three-bedroom, three-bathroom townhome is part of Rhythm at Taza Park - a vibrant, master-planned community just 10 minutes from downtown Calgary.
The entry level features a private garage and welcoming foyer, with the option to include a fully enclosed office - perfect for remote work or a quiet retreat. On the main floor, you’ll find an open-concept kitchen, dining, and living area with optional upgrades like a gourmet kitchen layout, flex room desk, or electric fireplace to make the space truly yours.
Upstairs, three spacious bedrooms offer comfort and privacy, with customizable options including a two-bedroom layout or a bedroom with an additional ensuite. Capping it all off, a private rooftop patio provides a standout feature—ideal for entertaining, relaxing, or simply enjoying the surrounding views and fresh air.Read More
The entry level features a private garage and welcoming foyer, with the option to include a fully enclosed office - perfect for remote work or a quiet retreat. On the main floor, you’ll find an open-concept kitchen, dining, and living area with optional upgrades like a gourmet kitchen layout, flex room desk, or electric fireplace to make the space truly yours.
Upstairs, three spacious bedrooms offer comfort and privacy, with customizable options including a two-bedroom layout or a bedroom with an additional ensuite. Capping it all off, a private rooftop patio provides a standout feature—ideal for entertaining, relaxing, or simply enjoying the surrounding views and fresh air.Read More
Facts & features
Stories:
3-story
Parking/Garage:
2
Feel Right at Home
Showhome 3D Walkthroughs
Floor Plan & ExteriorPersonalization OptionsGet a head start on your dream home with our interactive home visualizer - configure everything from the scructural options to selecting finishes.
Meet your new neighborhood














