1 OF 12
Sage Walkout Loft Plan
Townhome
2,298 ft ²
3-4beds
3
baths
The Sage delivers 2,190 sq. ft. of elevated townhome living across three spacious levels, capped with a private rooftop patio that takes full advantage of Calgary’s scenic surroundings. This three-bedroom, three-bathroom home is part of Rhythm at Taza Park - an inspired community where natural beauty and city energy meet, just 10 minutes from downtown.
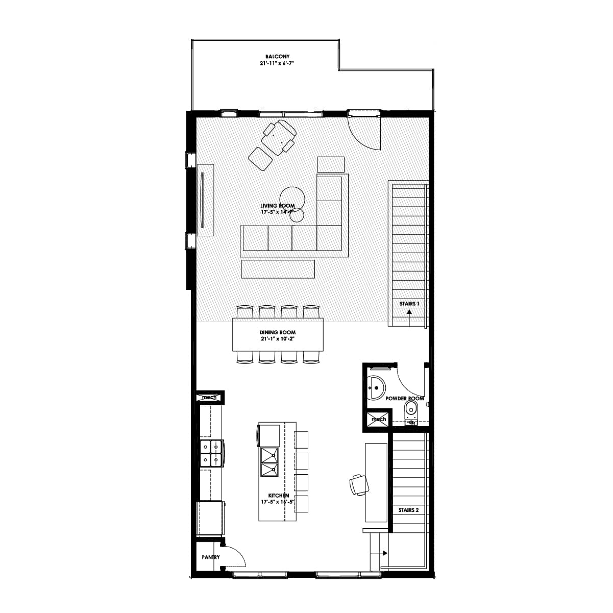
The entry level welcomes you with a generous foyer and access to your private garage, setting the tone for a bright, open interior. The main floor features lofted ceilings and a seamless flow between the living, dining, and kitchen areas, creating a grand yet comfortable space for entertaining or relaxing. Optional upgrades include a gourmet kitchen, electric fireplace, and a flex room desk for added functionality.
Upstairs, three well-appointed bedrooms offer room to grow, with optional configurations including a two-bedroom layout or additional ensuite. And at the very top, a spacious rooftop patio becomes your personal retreat - perfect for hosting, unwinding, or simply soaking in panoramic views.
The entry level welcomes you with a generous foyer and access to your private garage, setting the tone for a bright, open interior. The main floor features lofted ceilings and a seamless flow between the living, dining, and kitchen areas, creating a grand yet comfortable space for entertaining or relaxing. Optional upgrades include a gourmet kitchen, electric fireplace, and a flex room desk for added functionality.
Upstairs, three well-appointed bedrooms offer room to grow, with optional configurations including a two-bedroom layout or additional ensuite. And at the very top, a spacious rooftop patio becomes your personal retreat - perfect for hosting, unwinding, or simply soaking in panoramic views.
The Sage delivers 2,190 sq. ft. of elevated townhome living across three spacious levels, capped with a private rooftop patio that takes full advantage of Calgary’s scenic surroundings. This three-bedroom, three-bathroom home is part of Rhythm at Taza Park - an inspired community where natural beauty and city energy meet, just 10 minutes from downtown.
The entry level welcomes you with a generous foyer and access to your private garage, setting the tone for a bright, open interior. The main floor features lofted ceilings and a seamless flow between the living, dining, and kitchen areas, creating a grand yet comfortable space for entertaining or relaxing. Optional upgrades include a gourmet kitchen, electric fireplace, and a flex room desk for added functionality.
Upstairs, three well-appointed bedrooms offer room to grow, with optional configurations including a two-bedroom layout or additional ensuite. And at the very top, a spacious rooftop patio becomes your personal retreat - perfect for hosting, unwinding, or simply soaking in panoramic views.Read More
The entry level welcomes you with a generous foyer and access to your private garage, setting the tone for a bright, open interior. The main floor features lofted ceilings and a seamless flow between the living, dining, and kitchen areas, creating a grand yet comfortable space for entertaining or relaxing. Optional upgrades include a gourmet kitchen, electric fireplace, and a flex room desk for added functionality.
Upstairs, three well-appointed bedrooms offer room to grow, with optional configurations including a two-bedroom layout or additional ensuite. And at the very top, a spacious rooftop patio becomes your personal retreat - perfect for hosting, unwinding, or simply soaking in panoramic views.Read More
Facts & features
Stories:
3-story
Parking/Garage:
2
Feel Right at Home
Showhome 3D Walkthroughs
Floor Plan & ExteriorPersonalization OptionsGet a head start on your dream home with our interactive home visualizer - configure everything from the scructural options to selecting finishes.
Meet your new neighborhood














