1 OF 12
Arnica Walkout Plan
Multi Family
1,502 ft ²
2beds
3
baths
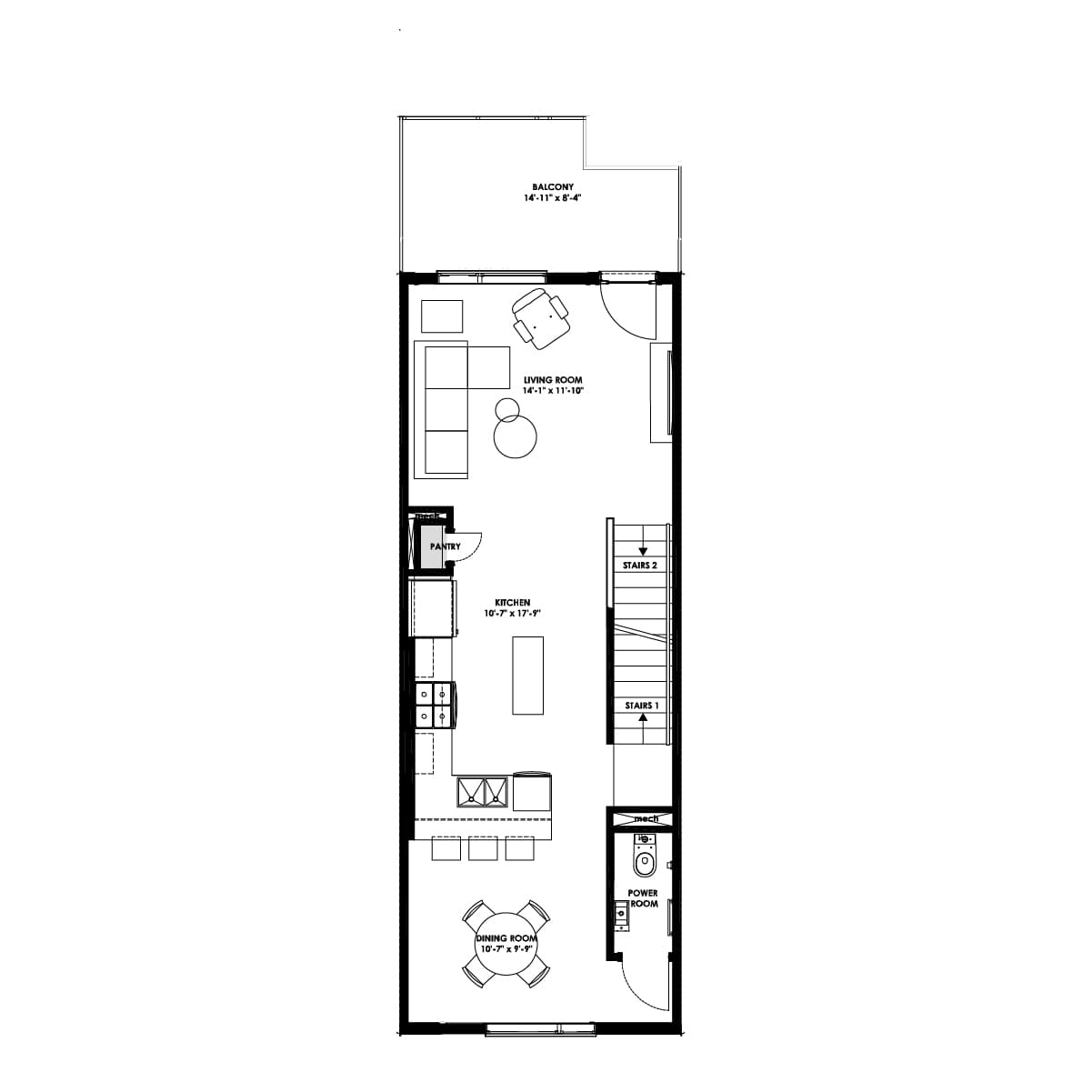
The Arnica offers 1,423 sq. ft. of smartly designed living space across three levels, blending contemporary style with everyday functionality. This two-bedroom, three-bathroom home is part of Rhythm at Taza Park, a vibrant community nestled between Glenmore and Stoney Trail, just minutes from downtown Calgary.
On the entry level, you’ll find a private garage and convenient foyer that sets the tone for the home’s clean, modern layout. The main level welcomes you with an open-concept living and dining space that flows into a well-appointed kitchen, with optional upgrades like a gourmet layout, electric fireplace, and extended powder room to suit your lifestyle.
Upstairs, dual bedrooms each feature their own bathroom, creating private retreats ideal for couples, roommates, or guests. Thoughtful details like the upper-level laundry and walk-out patio options embrace both comfort and connection to the surrounding landscape.
On the entry level, you’ll find a private garage and convenient foyer that sets the tone for the home’s clean, modern layout. The main level welcomes you with an open-concept living and dining space that flows into a well-appointed kitchen, with optional upgrades like a gourmet layout, electric fireplace, and extended powder room to suit your lifestyle.
Upstairs, dual bedrooms each feature their own bathroom, creating private retreats ideal for couples, roommates, or guests. Thoughtful details like the upper-level laundry and walk-out patio options embrace both comfort and connection to the surrounding landscape.
The Arnica offers 1,423 sq. ft. of smartly designed living space across three levels, blending contemporary style with everyday functionality. This two-bedroom, three-bathroom home is part of Rhythm at Taza Park, a vibrant community nestled between Glenmore and Stoney Trail, just minutes from downtown Calgary.
On the entry level, you’ll find a private garage and convenient foyer that sets the tone for the home’s clean, modern layout. The main level welcomes you with an open-concept living and dining space that flows into a well-appointed kitchen, with optional upgrades like a gourmet layout, electric fireplace, and extended powder room to suit your lifestyle.
Upstairs, dual bedrooms each feature their own bathroom, creating private retreats ideal for couples, roommates, or guests. Thoughtful details like the upper-level laundry and walk-out patio options embrace both comfort and connection to the surrounding landscape.Read More
On the entry level, you’ll find a private garage and convenient foyer that sets the tone for the home’s clean, modern layout. The main level welcomes you with an open-concept living and dining space that flows into a well-appointed kitchen, with optional upgrades like a gourmet layout, electric fireplace, and extended powder room to suit your lifestyle.
Upstairs, dual bedrooms each feature their own bathroom, creating private retreats ideal for couples, roommates, or guests. Thoughtful details like the upper-level laundry and walk-out patio options embrace both comfort and connection to the surrounding landscape.Read More
Facts & features
Stories:
3-story
Parking/Garage:
1
Feel Right at Home
Showhome 3D Walkthroughs
Floor Plan & ExteriorPersonalization OptionsGet a head start on your dream home with our interactive home visualizer - configure everything from the scructural options to selecting finishes.
Meet your new neighborhood











